Skip to main content
Contact
Language

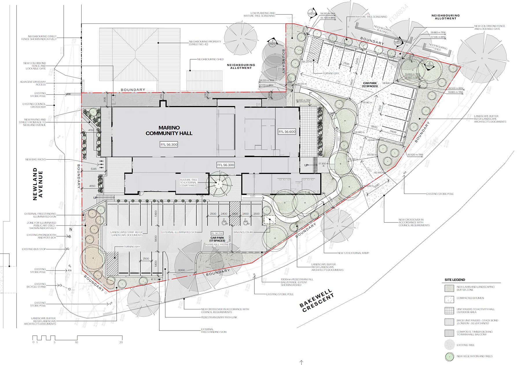
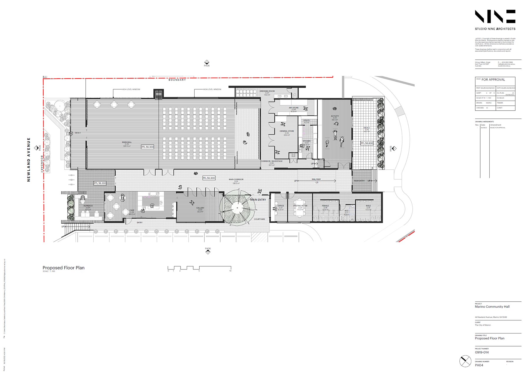
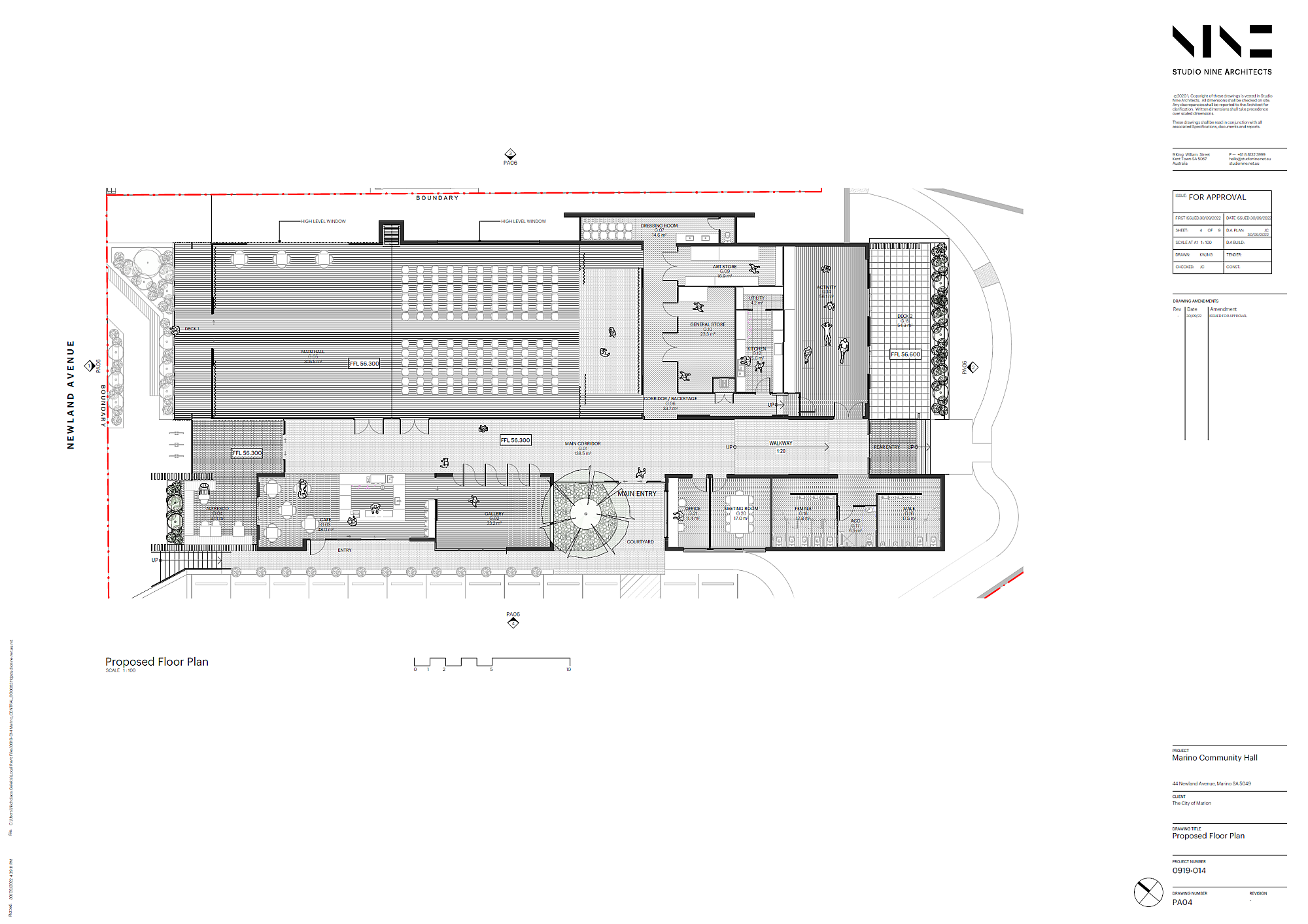
Marino Community Hall

Marion Council has committed $3.3 million towards this redevelopment, the State Government has committed $500k, and the Federal Government has pledged $3 million to rebuild the facility.

The new facility will contain:

  • Various community activity spaces
  • Informal café space
  • A better interconnected facility with an identifiable frontage and expanded car parking
  • A facility capable of delivering a range of community programs
  • Car parking and landscaping.

At the City of Marion, we believe that our community should have access to a broad range of community facilities so that everyone has the opportunity to lead an active, healthy lifestyle.

The existing Marino Hall is a well located, community facility that provides a space for various services including art and sewing groups, dance groups, martial arts, yoga and fitness and the Philadelphia Church of God. The building comprises of two halls, large kitchen and public amenities and was constructed in various stages over the 1940s-50s. Sections of the smaller hall and adjacent structures were structurally stablised in 2019 and have a medium-term stability period.

Council has identified that within the catchment area there is the capacity to increase community value through offering a further range of community services to the area.

Project status

  • In November 2019, Council undertook community consultation to assist in defining the requirements of the new facility.
  • From March to June 2020 a feasibility study was developed on options for the site
  • On 28 July 2020, Council endorsed a concept design and made a commitment of $2.5 million towards the project on the basis that the remaining $2.5 million be obtained through external partnership funding.
  • September/October 2020, the endorsed concept design was released for community consultation.
  • Late 2020, the final design was completed in readiness to seek external funding.
  • In 2022, State Government funding of $500k was received.
  • In 2023, Federal Government funding of $3 million was received.
  • In August 2023, construction activities began.
  • The facility reached completion in late June 2025 and is now open.

Visit the community consultation Making Marion webpage.